





High Garden East este un proiect rezidential gândit pentru un stil de viata modern si sigur intr-o comunitate selecta si durabila, punand accent pe sustenabilitate si responsabilitate. Se afla pe strada Electronicii, nr. 31, la doar 5 minute cu masina de Piata Obor si Piata Iancului, avand langa proiect statie stb.
Facilitati si dotari ale proiectului: incalzire prin pardoseala, centrala de imobil, spatii comerciale, pista de alergat, panouri fotovoltaice pentru spatiile comune, gradini interioare, hypermarket langa proiect etc.
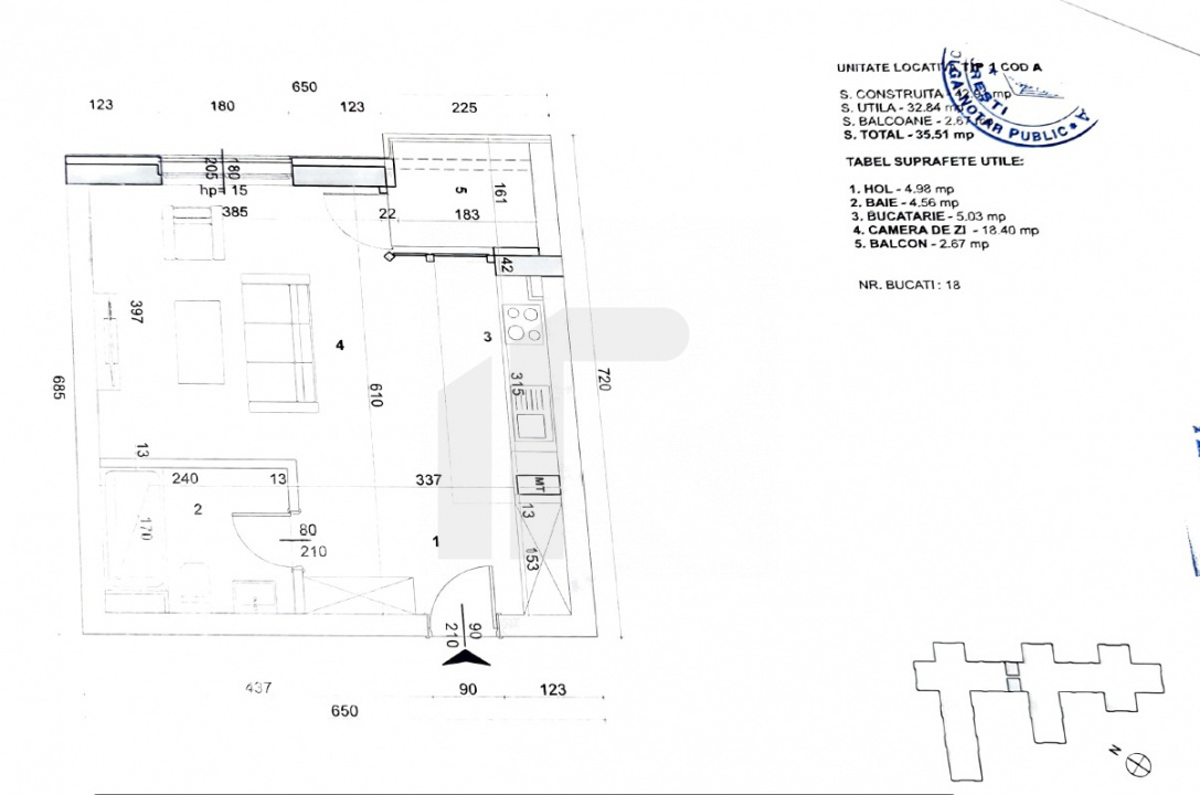
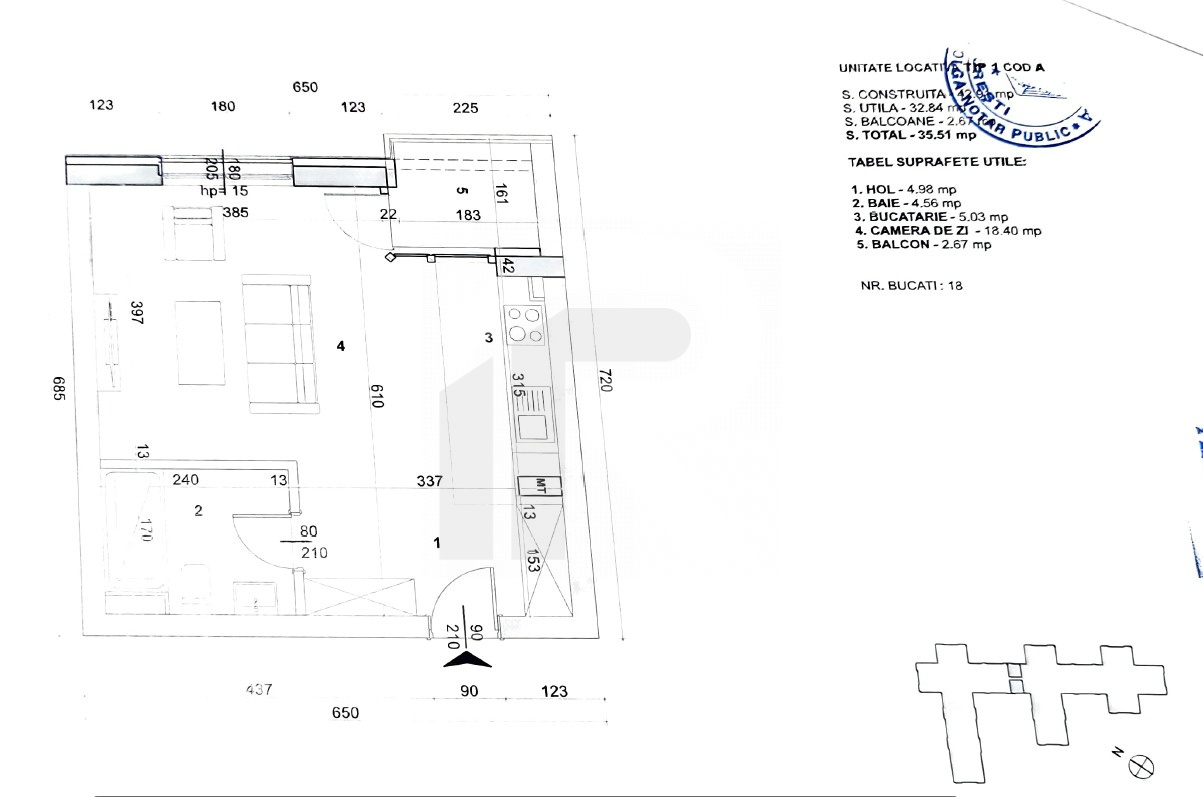
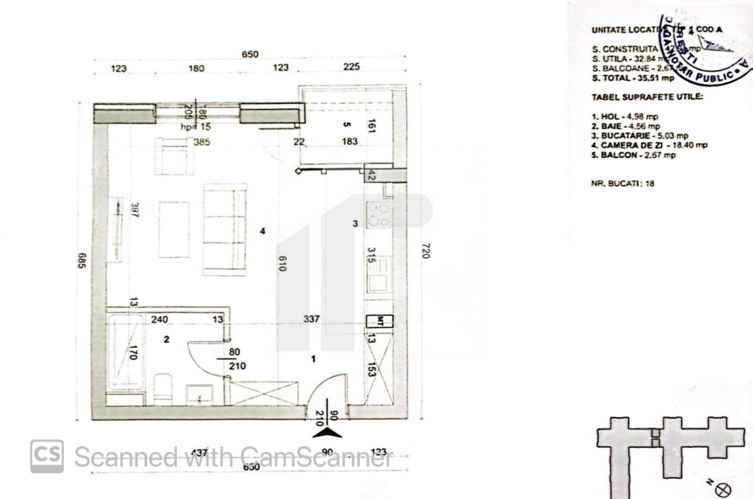
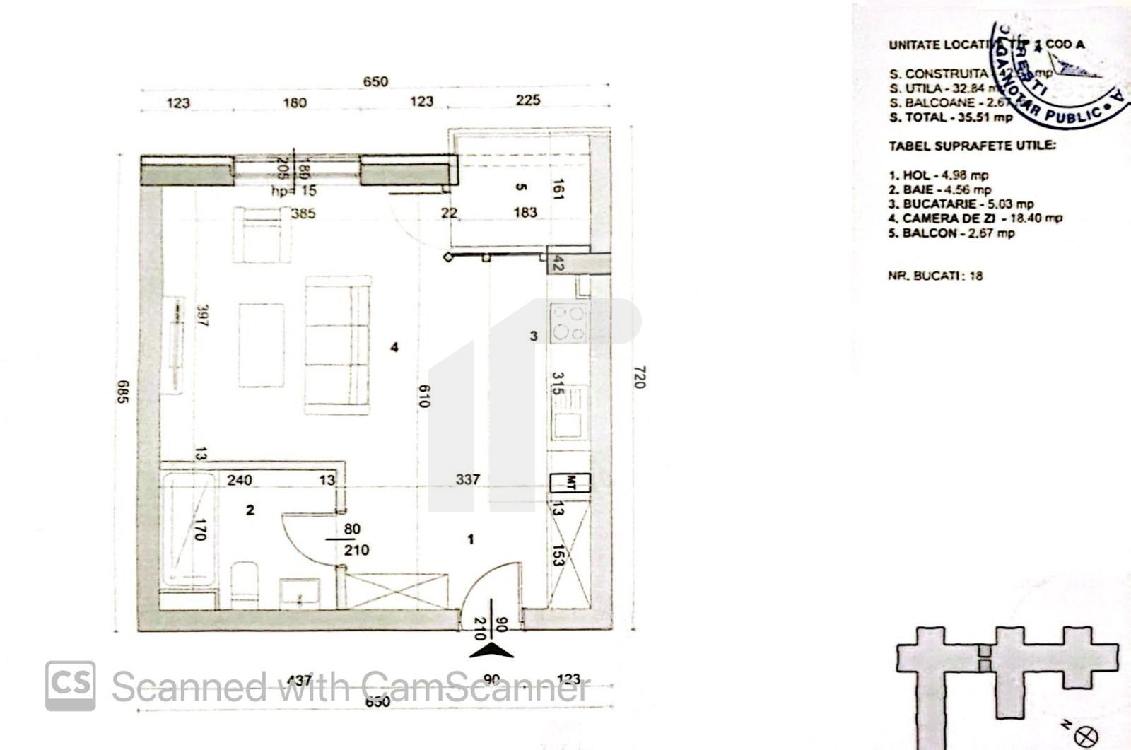
Studioul are o suprafata utila totala de 35.5mp dintre care 2.8mp de balcon. Orientarea este catre N-E, iar vederea este libera, catre lac.
Se vinde doar cu un loc de parcare aflat la nivelul -2 la pretul de 13 000 euro+TVA.
Constructorul proiectului este Pedro Construct, recunoscut pentru calitatea livrarii.
Finalizarea imobilul este in iunie 2026.
Se poate cesiona atat pe persoana fizica cat si pe persoana juridica cu taxare inversa.
||
High Garden East is a residential project designed for a modern and safe lifestyle in a select and sustainable community, emphasizing sustainability and responsibility. It is located on Electronicii Street, no. 31, just 5 minutes by car from Piata Obor and Piata Iancului, with a public transportation station next to the project.
Facilities and equipment of the project: underfloor heating, building central heating, commercial spaces, running track, photovoltaic panels for common spaces, interior gardens, hypermarket next to the project, etc.
The studio has a total usable area of 35.5sqm, of which 2.8sqm is a balcony. The orientation is N-E, and the view is unobstructed, towards the lake.
It is sold only with a parking space located at -2 level at the price of 13,000 euros + VAT.
The project's builder is Pedro Construct. recognized for its quality.
The completion of the project is June 2026.
It can be bought by individual or by company with reverse charge.