
















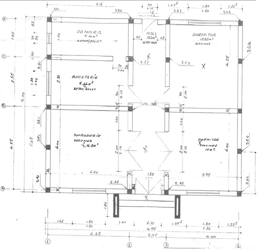
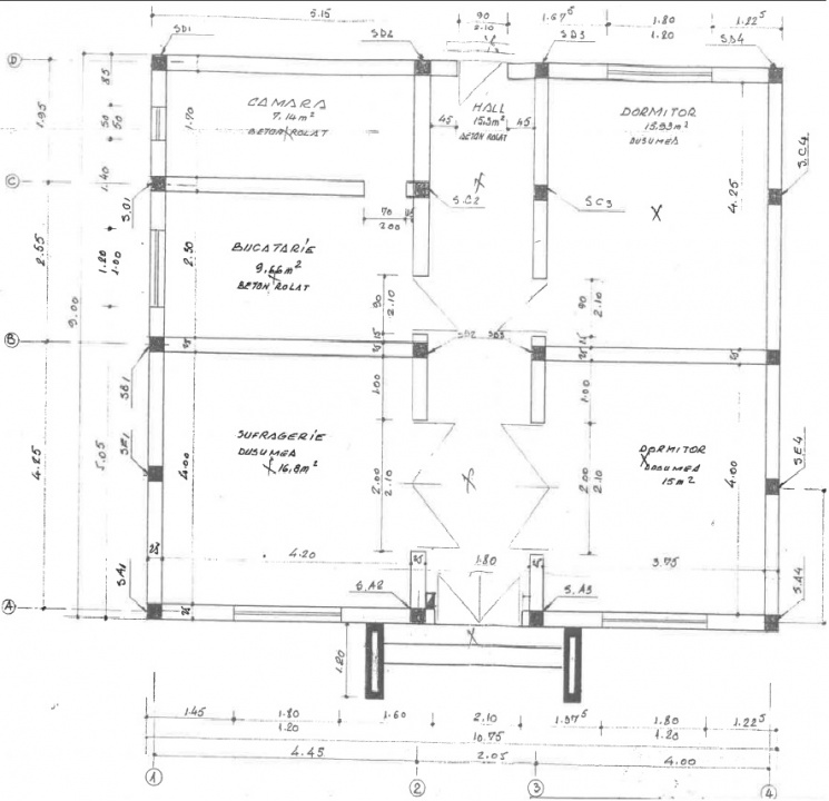
Descoperă o proprietate atractivă în Ștefăneștii de Jos, situată pe Str. Ștefăneștii de Jos nr. 153, în imediata apropiere a Școlii Gimnaziale – o casă individuală pe parter, amplasată pe un teren generos de 791 mp, ideală pentru cei care își doresc spațiu, confort și acces rapid către București.
Unul dintre principalele avantaje ale proprietății este terenul cu deschidere de 13 ml, care oferă multiple oportunități: extinderea locuinței, amenajarea unei grădini sau dezvoltarea unei investiții pe termen lung.
🔌 Utilități: curent electric, apă, gaze disponibile la poartă (cu posibilitate de racordare rapidă)
Zona este liniștită și bine conectată, fiind potrivită atât pentru locuire permanentă, cât și pentru investiție.